Konversion An der Münze, Neuss

Innerstädtische Nachverdichtung eines Wohn- und Gewerbe Blocks

Studienauftrag und Realisierung

dicht, introvertiert, hell

Konzept

Die Neusser Innenstadt erfährt eine kontinuierliche Aufwertung und profitiert von der Nähe zur prosperierenden Stadt Düsseldorf. Der Auftraggeber hat einen umfassenden Immobilienbestand im zentralen Bereich der historischen Münze, in direkter Nachbarschaft des Neusser Marktes und des Romaneums.

In unserer Studie setzen wir unterschiedliche Strategien der städtebaulichen Nachverdichtung ein und zeigen, dass eine hohe Verdichtung des Blockinnenraumes zu einer deutlichen städtebaulichen Qualitätssteigerung führen kann. Mit der Studie haben wir den Diskurs in der Stadt angeregt und tragen zu einer Wiederbelebung der Münze bei.

Schwarzplan
Schwarzplan

Wirtschaftlichkeit

Seit 2014 realisieren wir das Projekt in Etappen. Im ersten Schritt werten wir die Anbindung an die Oberstraße mit einer Revitalisierung des dort angrenzenden Gebäudes auf. Der Durch- und Übergang wird entscheidend zur stärkeren Frequentierung des Platzes „An der Münze“ beitragen. Die Verdichtung des Blockinnenraumes erfolgt in weiteren Etappen.

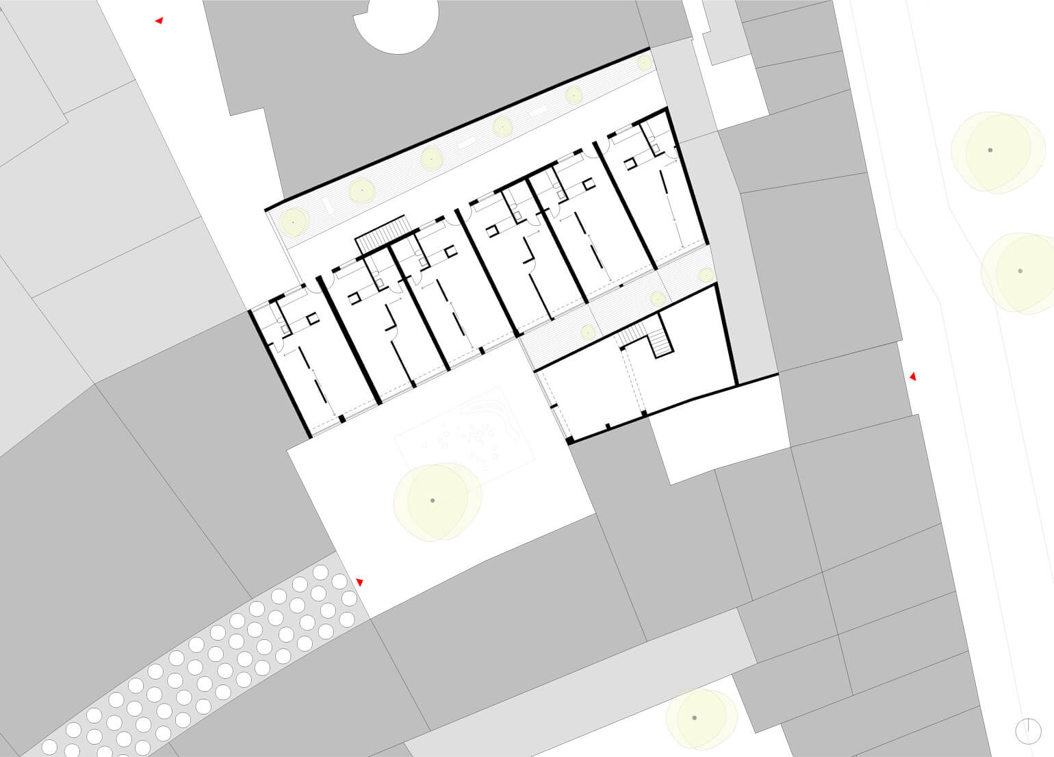
Grundriss.
Grundriss

Konstruktion + Material


Der Großteil der Maßnahmen sind zunächst Revitalisierungen von Bestandsbauten. Wir haben uns für ein nachhaltiges Sanierungskonzept mit einer vorgehängten, hinterlüfteten Fassade entschieden, das große Gestaltungspielräume eröffnet und die bestehende, modulare Baustruktur unterstreicht.

Projektdaten

Nutzfläche:
ca. 1.764m²

Bruttorauminhalt:
ca. 6.200m³

Grundstücksgröße:
882m²

Platzraum:
ca. 1.000 m²

Baukosten (DIN 276):
1,6 Mio. Euro Brutto

Projektverantwortliche

Bauherr:
Privater Investor

Architektur + Wirtschaftlichkeitsberechnung + Bauleitung: 
karzelwillkarzel Architekten, Köln

Tragwerk:
Gehlen Ingenieure, Düsseldorf

Landschaft:
Knüvener Architekturlandschaft, Köln

Haustechnik:
Planungsbüro Espeter, Kaarst

Brandschutz:
Gehlen Ingenieure, Düsseldorf

Bauphysik:
t.b.a.