BKK Scheufelen

Internationaler Wettbewerb

Hauptsitz für eine regionale Betriebskrankenkasse

markant, kommunikativ, ortstypisch

Konzept

Der Neubau steht als markanter Solitär, von der Brücke abgerückt, und schafft eine starke Präsenz im heterogenen Stadtraum. Die Adressbildung erfolgt Richtung Schöllkopfstrasse, Innenstadt und Bahnhof. Der Bau wird eingebettet in eine Landschaft aus Aktivität, den Generationenpark; der städtische Raum unter und neben der Brücke wird prägender Teil dieses Konzeptes. Das kompakte, würfelartige Volumen des Neubaus wird durch drei Volumensubtraktionen in seiner Typologie geprägt und tritt in Dialog mit der gegenüberliegenden Kirche und dem Brückenbauwerk.

Schwarzplan mit Eingliederung in Kontext
Schwarzplan
Bezüge zum Kontext
Bezüge zum Kontext
Städtebauliche Eingliederung
Städtebauliche Eingliederung
Entwicklung Kubatur
Entwicklung Kubatur

Kommunikation

„Die Gesundheit der Versicherten steht bei der BKK Scheufelen stets im Mittelpunkt.“ Dies ist ein zentraler Satz des Portraits der BKK Scheufelen und Leitgedanke des vorliegenden Entwurfs. Aktivitäts- und Bewegungsangebote sowie Ernährungsbeispiele animieren das Umfeld und den Innenraum der BKK; Kunden, Mitarbeiter und die Bevölkerung werden eingeladen sich zu beteiligen. Alle Funktionen der BKK werden um ein großzügiges Atrium organisiert, das eine hohe Transparenz und ein kommunikatives Umfeld für die Mitarbeiter eröffnet und eine beidseitige Belichtung aller Büroflächen schafft. Das Atrium ist Treffpunkt und Knoten für Besucher und Mitarbeiter und entwickelt durch die sportliche Aktivierung im Erdgeschoss eine Zeichenhaftigkeit für die Haltung der BKK. Dieses gesundheitsorientierte Rollenbild als Zentrum des Entwurfes etablieren wir als Leitbild für die zukünftige Ausrichtung der BKK.

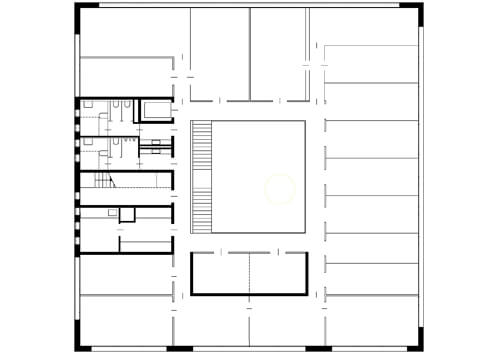
Grundriss 1. Obergeschoss
Grundriss 1. Obergeschoss
Grundriss 2. Obergeschoss
Grundriss 2. Obergeschoss

Konstruktion

Konzeptgraphik Materialisierung

Die Geschichte der BKK, hervorgegangen aus der Papierfabrik Scheufelen, ist der zweite zentrale Konzeptgedanke. Baukörpergestaltung und Materialität orientieren sich an den Themen: Papier > Zellulosefaser > Holz. Damit schaffen wir eine gedankliche Verbindung zum stark fachwerkgeprägten Stadtbild von Kirchheim unter Teck. Das Gebäude ist als Skelettbau konzipiert, der in Holzskelettbauweise ausgefacht wir und damit zugleich die höchste Flexibilität für alle zukünftigen Nutzungen eröffnet. Die Fassade wird in einer feinen, horizontalen Holz Lattung ausgeführt, als Analogie zu einem Papierstapel aus dem die Volumina entnommen worden sind.

Fassadenkonzept
Fassadenkonzept

Ansichten und Schnitte

Längsschnitt mit Brücke
Längsschnitt mit Brücke
Ansicht Ost
Ansicht Ost
Querschnitt mit Kirche
Querschnitt mit Kirche
Ansicht Süd
Ansicht Süd

Projektverantwortliche

Auslober:
BKK Scheufelen, Kirchheim unter Teck

Architektur:
karzelwillkarzel Architekten, Köln

Mitarbeit:
Nazanin Afshari, Nina Kuka, Nicole Schütte

Tragwerk:
Fast + Epp, Darmstadt

Landschaft:
Knüvener Architekturlandschaft, Köln

Brandschutz:
IB Schallenberg, Krefeld

Projektdaten

Nutzfläche:
1.944m²

Bruttorauminhalt:
9.998m³

Grundstücksgröße:
3450m²

Genrationenpark:
ca. 5.200 m²

Baukosten (DIN 276):
4,5 Mio. Euro Brutto

Länge, Breite, Höhe:
27 x 27 x 13m

Größe Atrium:
9 x 9m