openOffice, Zeche Zollverein, Essen

Modulares, mobiles, energieunabhängiges Bürogebäude

Internationaler Wettbewerb, 1. Preis, Teilprojekt der Kulturhauptstadt Ruhr 2010.

modular, flexibel, leicht

Konzept

Der Wettbewerb der Kulturhauptstadt Ruhr 2010 suchte nach innovativen „mobile Working Spaces“, die im Rahmen einer kleinen Bauausstellung zur Standortentwicklung des östlichen Bereiches der Zeche Zollverein beitragen sollen. Wir haben ein modulares Gebäude aus fünf Raumzellen entwickelt, das sich mit zwei großen Fensterfronten zur faszinierenden Landschaft der Zeche Zollverein öffnet. Die Module können auf einem Tieflader transportiert werden, die Statik ist entsprechend dimensioniert, die Verknüpfungspunkte zwischen den einzelnen Raumzellen sind reversibel ausgebildet.

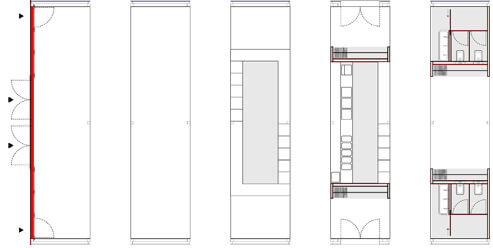
Konzeptgraphik Wettbewerb
Konzeptgraphik Wettbewerb

Wirkung

Das Gebäude ist in enger Zusammenarbeit mit der TU Darmstadt als Design Build und Forschungsprojekt entstanden. Durch die Unterstützung von rund 45 Unternehmen aus der Bauwirtschaft konnten wir ein Gebäude realisieren, das zahlreiche innovative Bautechnologien einsetzt.

Modulares Raumkonzept
Modulares Raumkonzept

Konstruktion + Innovation

Die Stahlrahmenkonstruktion des Gebäudes haben wir mit der Firma Arcqu entwickelt. Das energetische Konzept basiert auf einer gekoppelten solarthermischen- und photovoltaischen Versorgung, die ein auf Karbonfasern und PCM basierendes Flächenheizsystem speist. Dieses System ist in unserem Gebäude zum ersten Mal zum Einsatz gekommen.

Pläne/Zeichnungen

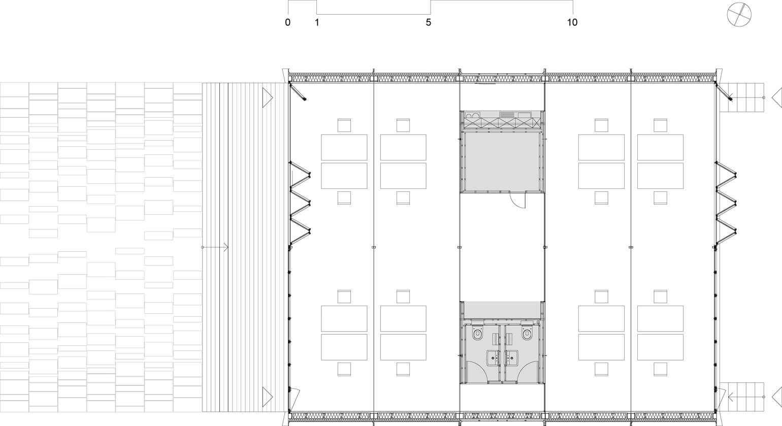
Grundriss.
Grundriss
Ansicht.
Ansicht
Querschnitt
Querschnitt

Projektverantwortliche

Auslober
Entwicklungsgesellschaft Zollverein, im Rahmen der RUHR 2010

Architektur
bk2a architektur in Kooperation mit Fachgebiet Industrielle Methoden der Hochbaukonstruktion, Prof. M. Hauschild Studierende Alexander Dasic + Tim Waidelich und dem Team TU Darmstadt

Bauleitung
bk2a architektur, Köln

Tragwerk
Arcqu, Langenargen

Fassadenplanung
Solarlux, Bissendorf

Fotographie
Guido Erbring, Köln

Sponsoren
Zahlreichen Sponsoren aus der Bauindustrie (siehe umfassende Projektdokumentation)

Projektdaten

Nutzfläche
180m²

Bruttorauminhalt
675m³

Baukosten (DIN 276)
ca. 500.000 Euro Brutto

Fernsehporträt

Das Büro der Zukunft